Description
STILL AVAILABLE FROM OUR AUCTION 6TH NOVEMBER 2025 AT 3PM - LOT 1.
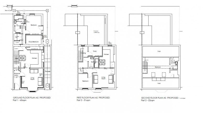
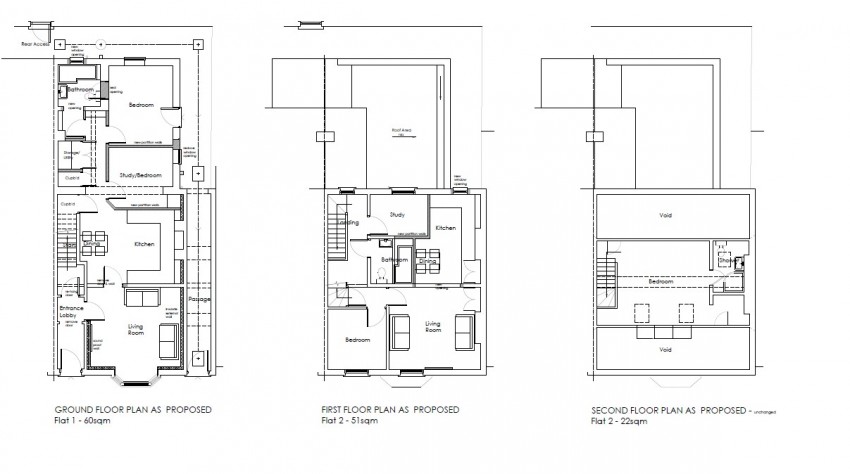
A substantial brick built end of terrace property which has been used as an office and could be used as such in the future. However under application number ZB24/00769/MAN an application has been made for subdivision of existing offices to create 2 no. flats to include self-contained ground floor flat and flat to upper floors to include first floor and previously converted attic space.
The current property has the benefit of double glazed windows and gas central heating with a recently replaced boiler. There are retained features, such as Victorian fireplaces and there is the other opportunity to revert the property to what it was originally designed as a four bedroom family home, subject to the necessary consent.
The property has the benefit of a covered walkway which is to the right hand side and provides a link from front to back. This also enlarges the floor space on the upper floors.
Hethertons Solicitors Limited, Tudor Court, Opus Avenue, York Business Park York, YO26 6RS. Tel: 01904 528200 FAO: Lisa Morley.
READ MORE