Back
2 Bedroom First Floor Flat
To Let
Harlow Moor Drive, Harrogate, HG2 0JX
£1,850 pcm
Calculate Your Stamp Duty
Results
Stamp Duty To Pay:
Effective Rate:
| Tax Band |
% |
Taxable Sum |
Tax |
Download Brochure
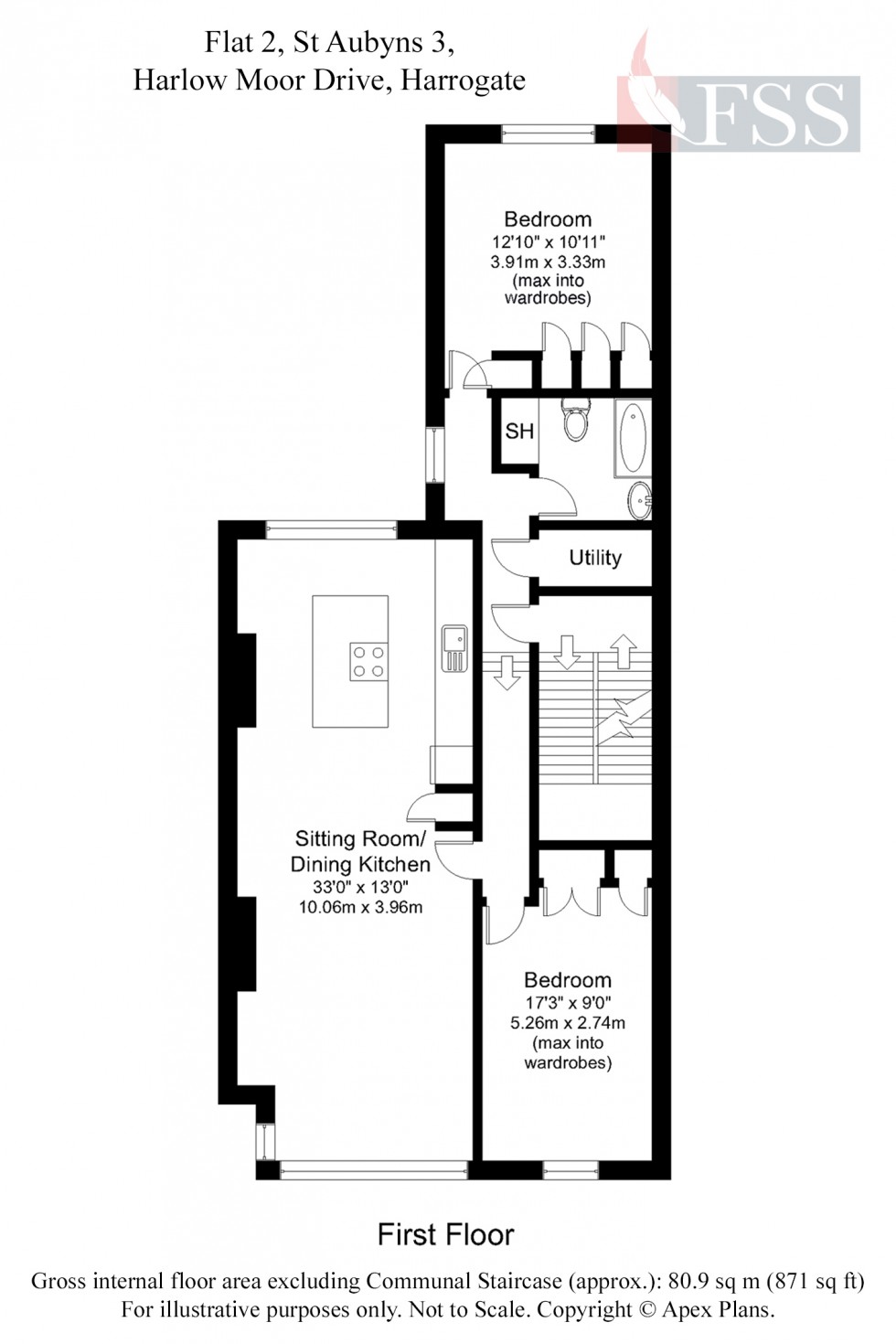
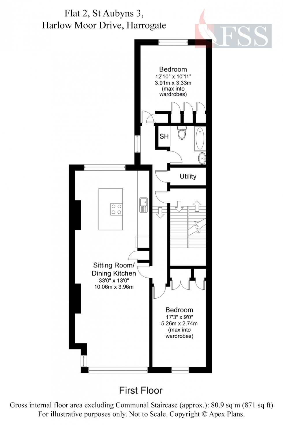
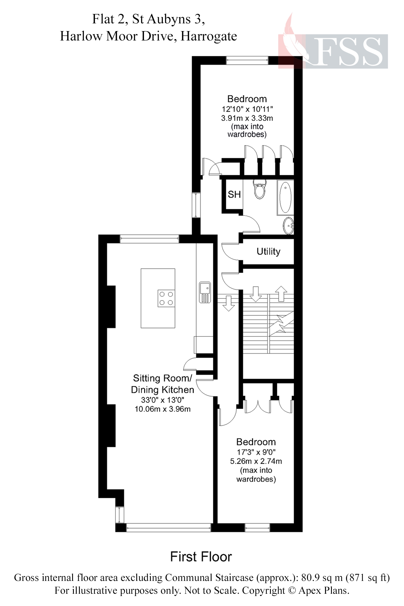
F2 St A - A stunning newly renovated high specification first floor apartment in this great location overlooking the Valley Gardens.
Tenant Application Form
Rent Affordability Calculator
Enter the monthly rent for the property you wish to apply for and we will tell you
what your Gross total income should be.
You need to have this much income per year to rent this property:
Please note your income can be a mix of savings and earnings.
If you have a higher yearly income than required you should pass the financial referencing
checks.
If you have a lower yearly income than required you are likely to
need a guarantor and should call and speak to us before filling out an application form.
Description
F2 St A - A stunning newly renovated high specification first floor apartment in this great location overlooking the Valley Gardens.
We are delighted to offer this newly renovated apartment in a much sought after part of Harrogate. Finished to the highest of standards this first floor apartment benefits from having stunning spacious living/dining kitchen with integrated appliances and breakfast island and granite work surfaces. There are two double bedrooms - both with fitted wardrobes, along with a fabulous bathroom with bath and separate shower. The apartment has gas fired central heating double glazing and underfloor floor heating to the bathrooms along with door intercom system. Parking is on street. An inspection of this superbly finished apartment is recommended to appreciate both the quality and the location.
READ MORE