Back
4 Bedroom Detached House
To Let
Leadhall Close, Harrogate, HG2 9PQ
£2,500 pcm
Calculate Your Stamp Duty
Results
Stamp Duty To Pay:
Effective Rate:
| Tax Band |
% |
Taxable Sum |
Tax |
Download Brochure
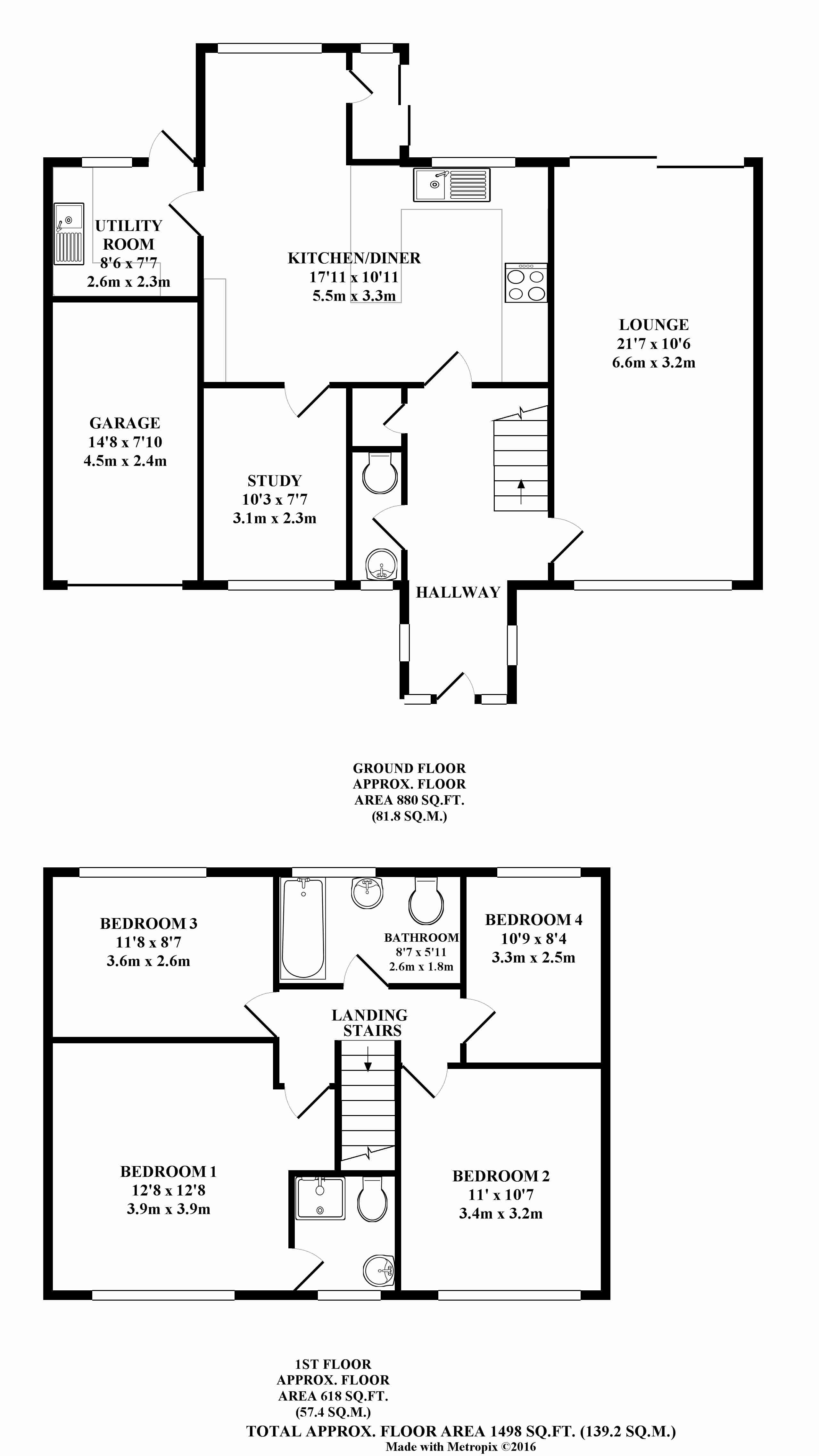
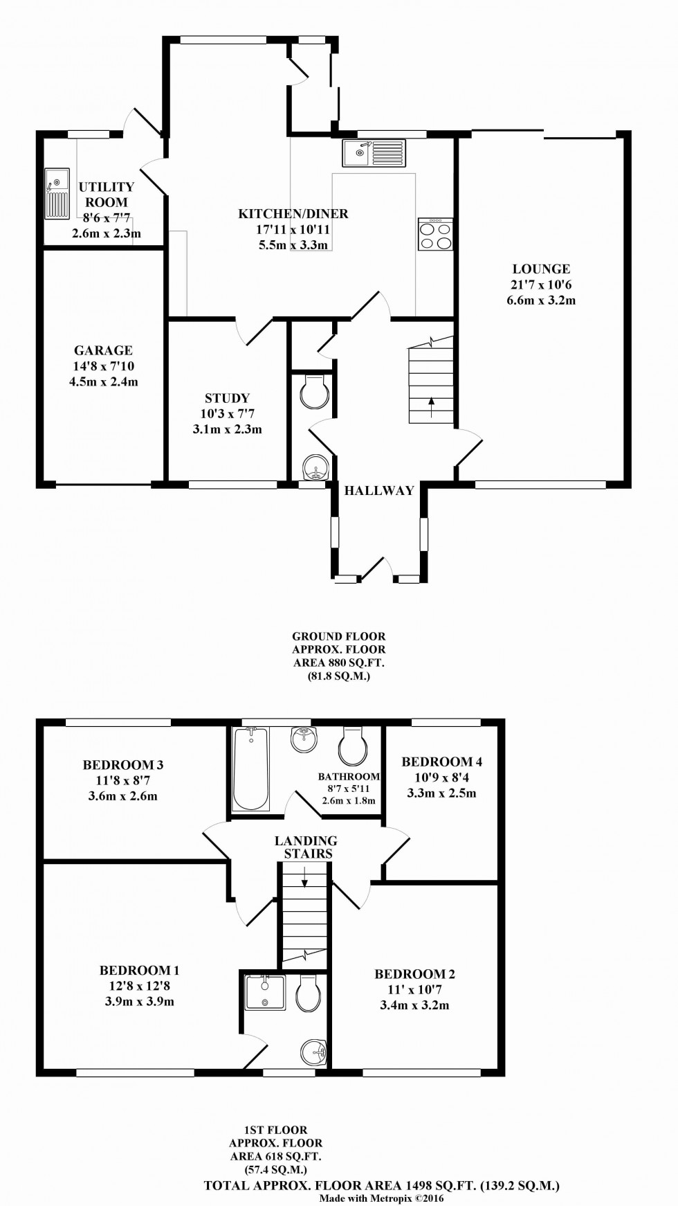
A spacious newly decorated 4 bedroom 2 bathroom detached family home in this much sought after part of Harrogate
Tenant Application Form
Rent Affordability Calculator
Enter the monthly rent for the property you wish to apply for and we will tell you
what your Gross total income should be.
You need to have this much income per year to rent this property:
Please note your income can be a mix of savings and earnings.
If you have a higher yearly income than required you should pass the financial referencing
checks.
If you have a lower yearly income than required you are likely to
need a guarantor and should call and speak to us before filling out an application form.
Description
A spacious newly decorated 4 bedroom 2 bathroom detached family home in this much sought after part of Harrogate
A most spacious four bedroom, three reception room, detached family home in this much sought after location. The accommodation which has been newly decorated along with some new carpets, has a generous size lounge, modern dining kitchen, useful separate utility room and further reception room which would make an ideal playroom or office. There are four good size bedrooms - one of which has ensuite shower facilities along with a house bathroom. Outside there are gardens of lawn and patio, driveway parking for two vehicles and a single garage. Other benefits include gas fired central heating and double glazing. An inspection is recommended to appreciate this fabulous family home.
READ MORE