Description
Available late 2026 – For Sale or To Let
A brand-new development of high-quality hybrid workshop and office units ideally located at Hutton Bank, Ripon, available from Spring 2026.
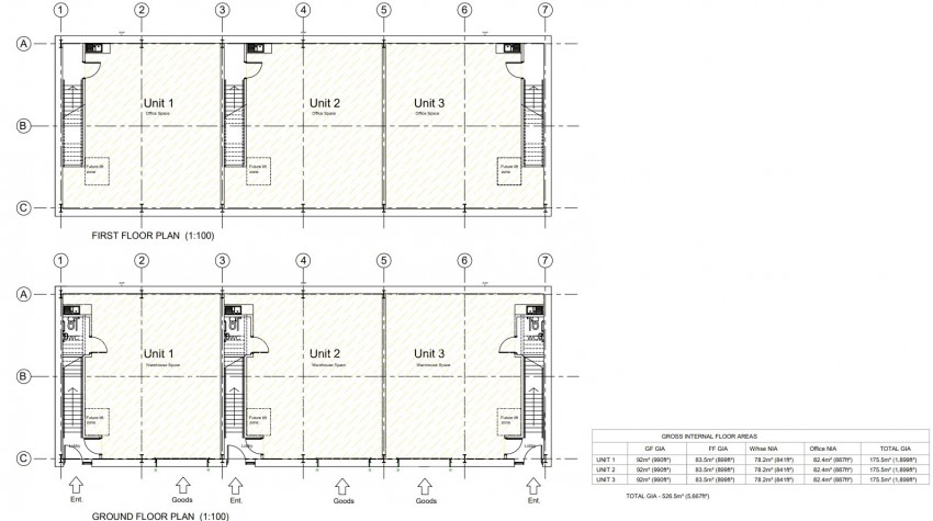
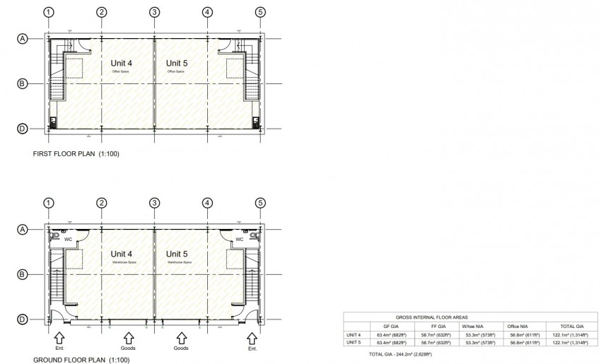
This modern scheme will comprise of five purpose-built two-storey units, each thoughtfully designed to provide flexible space for a variety of business uses. Each unit features:
Ground Floor: Dedicated workshop/storage area with roller shutter access
First Floor: Well-appointed office accommodation with natural light and versatile layout
The development includes:
Three larger units of approx. 1,900 sq ft each
Two smaller units of approx. 1,300 sq ft each
Units will be available to purchase or lease, offering excellent flexibility for occupiers and investors alike.
Pricing:
Freehold Values: from £215,000 to £285,000
Rental Values: from £17,500 to £25,000 per annum
This is an exceptional opportunity to secure modern, energy-efficient business space in a sought-after North Yorkshire location, just minutes from Ripon city centre and with excellent transport links.
Register your interest early to secure a unit in this exciting new development.
Brief Terms
Terms: Leasehold. The units will be available on a new lease, the terms of which are to be negotiated.
Rateable Value: TBA
For the 2026/27 rating year, business rates are calculated using a tiered multiplier system. For properties with a Rateable Value below £51,000, multipliers range from approximately 38.2p for qualifying Retail, Hospitality and Leisure uses to 43.2p for other property types, subject to eligibility.
Small business rate relief may also be available.
Interested parties should make their own enquiries with North Yorkshire Council to confirm the exact rates payable. FSS accepts no liability for any changes to business rates or the accuracy of this information.
VAT: The units will be elected for VAT.
Services: All mains services will be connected with the exception of gas.
Legal Costs: Unless expressly stated all parties will be responsible for their own legal costs in connection with this transaction.
Planning: Interested parties are advised to make their own enquiries of the local planning authority in respect of planning proposals if any change of use is envisaged.
Viewing: If you would like to view this property, please contact FSS on 01423 501211 and we will be pleased to make an appointment.