Description
STILL AVAILABLE FROM OUR ONLINE AUCTION
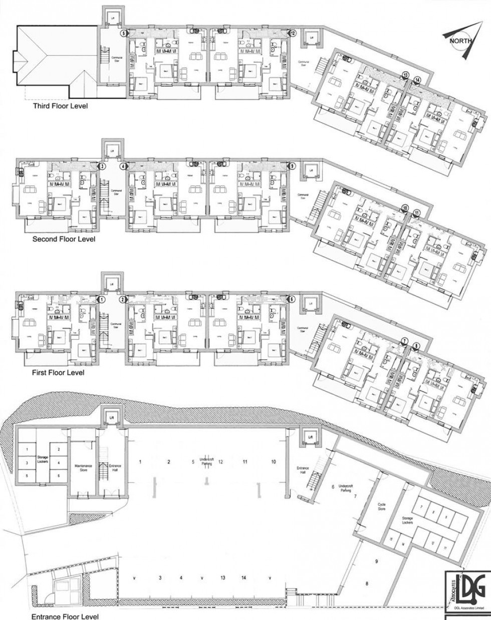
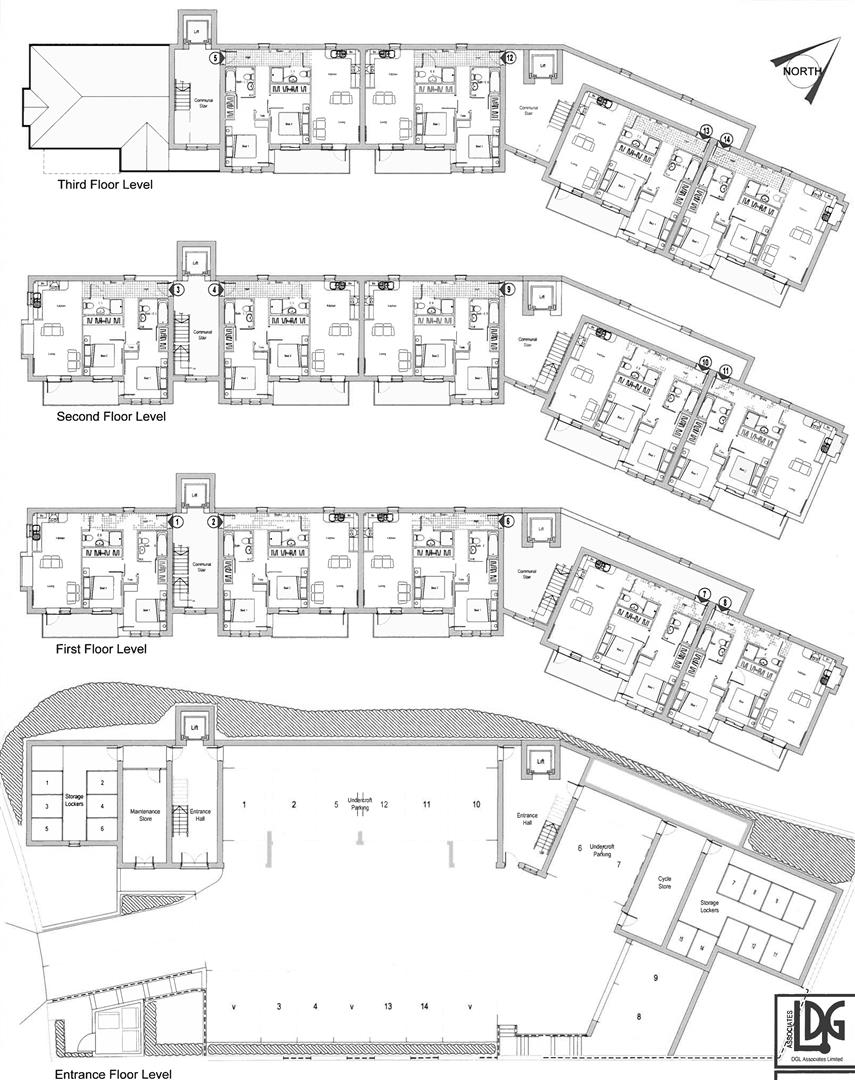
DEVELPOMENT OPPORTUNITY - A partially constructed development of 14 apartments with undercroft parking incorporating two lifts, and balconies to each flat.
Views over Knaresborough St. John's playing Field.
When completed the apartments will offer between 645 sqft (60 sqm) & 710 sqft (66 sqm) of accommodation.
Planning permission granted for 14 apartments with undercroft parking incorporating two lifts and balconies to each flat.
Planning Ref:19/00129/FULMAJ (Erection of 14 apartments with undercroft parking and associated landscaping and hardstanding) - Subject to conditions.
Solicitors
Saracens Solicitors, Thanet House, 231-232 Strand, London, WC2R 1DA. Tel: 02035883500 FAO: Summiey Khan.
READ MORE